+34 722 471 120

Piso en venta en Calle de Panissars

635,000.00€
3
3
0
0
108.00 ㎡

Description

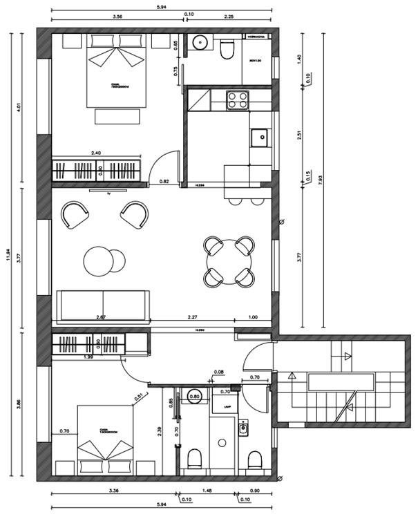
Nº AICAT 8570.Descubre esta exclusiva vivienda de obra nueva en el corazón de Sants, una oportunidad única para estrenar un hogar pensado para el confort, la luz y la calidad de vida.

Actualmente en construcción, esta propiedad ofrece una ventaja excepcional: la posibilidad de personalizar los espacios y la distribución según tus necesidades y estilo de vida. Un auténtico lujo en una de las zonas mejor comunicadas de Barcelona.

Se trata de una vivienda totalmente exterior, con abundante luz natural en todas sus estancias, diseñada para proporcionar bienestar y funcionalidad. Ideal tanto para parejas como para familias.

Con 108 m² útiles, la vivienda contará con:.3 habitaciones: dos amplias suites con baño completo privado.3 baños en total (incluyendo un aseo de cortesía).Un espectacular salón-comedor de 30 m², amplio y muy luminoso.Cocina abierta de diseño, totalmente equipada con electrodomésticos de alta gama y acabados de primera calidad.Tres pequeños balcones que aportan aún más luz y ventilación

Además, la propiedad incorpora placas solares, garantizando una mayor eficiencia energética y un menor consumo.

En la zona comunitaria, exclusiva para solo 4 vecinos, podrás disfrutar de:.Piscina con jacuzzi.Terraza - 17m.Zona de barbacoa.Baño adicional exterior para mayor comodidad

Ubicada en una calle muy tranquila, prácticamente peatonal, esta vivienda es perfecta para familias con niños, personas con mascotas o personas mayores que necesiten facilidad de movilidad.

La ubicación es inmejorable: a pocos pasos del metro, con múltiples líneas de autobús cercanas y a tan solo 5 minutos de la Estación de Sants. Rodeada de todo tipo de servicios como restaurantes, comercios, centros de salud y colegios.

Transporte cercano:.Metro L1 (línea roja).Metro L5 (línea azul)

Sants es uno de los barrios más auténticos y dinámicos de Barcelona. Combina el encanto de un entorno tradicional con una excelente oferta comercial y de servicios. Destaca por su ambiente familiar, sus calles llenas de vida y su excelente conexión con el resto de la ciudad, convirtiéndolo en una de las zonas más demandadas para vivir.

Certificado - A.

Nº AICAT 8570.Discover this exclusive newly built home in the heart of Sants, a unique opportunity to enjoy a brand-new property designed for comfort, natural light, and quality of life.

Currently under construction, this property offers an exceptional advantage: the possibility to customize spaces and layout according to your needs and lifestyle. A true luxury in one of the best-connected areas of Barcelona.

This is a fully exterior home, filled with natural light in every room, designed to provide comfort and functionality—ideal for both couples and families.

With 108 m² of usable space, the property will feature:.3 bedrooms: two spacious en-suite rooms with private full bathrooms.3 bathrooms in total (including a guest toilet).A spectacular 30 m² living-dining area, bright and spacious.An open-plan designer kitchen, fully equipped with high-end appliances and premium finishes.Three small balconies that provide additional light and ventilation

The property also includes solar panels, ensuring greater energy efficiency and reduced energy consumption.

In the communal area, shared by only 4 homes, you will enjoy:.Swimming pool with jacuzzi.Terrace of 17m.Barbecue area.Additional outdoor bathroom for convenience

Located on a very quiet, almost pedestrian street, this home is ideal for families with children, pet owners, or elderly residents who require easy mobility.

The location is excellent: just steps from the metro, with several bus lines nearby and only 5 minutes from Sants Station. Surrounded by all kinds of services such as restaurants, shops, healthcare centers, and schools.

Nearby transport:.Metro Line L1 (Red Line).Metro Line L5 (Blue Line)

Sants is one of Barcelona’s most authentic and vibrant neighborhoods. It blends traditional charm with a wide range of shops and services. Known for its family-friendly atmosphere, lively streets, and excellent connectivity, it is one of the most sought-after areas to live in the city.

Certificates - A.

View Others

El Gòtic

1  Bedrooms
Barcelona
€365,000

Eixample

3  Bedrooms
Barcelona
€1,450,000

Les Tres Torres

2  Bedrooms
Barcelona
€640,000

La Dreta de l´Eixample

3  Bedrooms
Barcelona
€795,000

El Poble-sec

2  Bedrooms
Barcelona
€600,000

Eixample

3  Bedrooms
Barcelona
€1,500,000

Les Corts

4  Bedrooms
Barcelona
€745,000

Born

6  Bedrooms
Barcelona
€3,000,000
1 - 9 of 88 properties
Powered by Estatik

Request A Valuation

Our team doesn't just value your home, but finds out more about your expectations and intentions so we can
tailor the selling process to your needs.

Reset password

Enter your email address and we will send you a link to change your password.

Comience con su cuenta

para guardar tus casas favoritas y más

Sign up with email

Comience con su cuenta

para guardar tus casas favoritas y más

By clicking the «SIGN UP» button you agree to the Terms of Use and Privacy Policy
Powered by Estatik