+34 722 471 120

Exclusivo ático con gran terraza en Les Corts, Barcelona

Property Id: HSHS200326

575,000.00€
2
2
0
1975
118.00 ㎡

Description

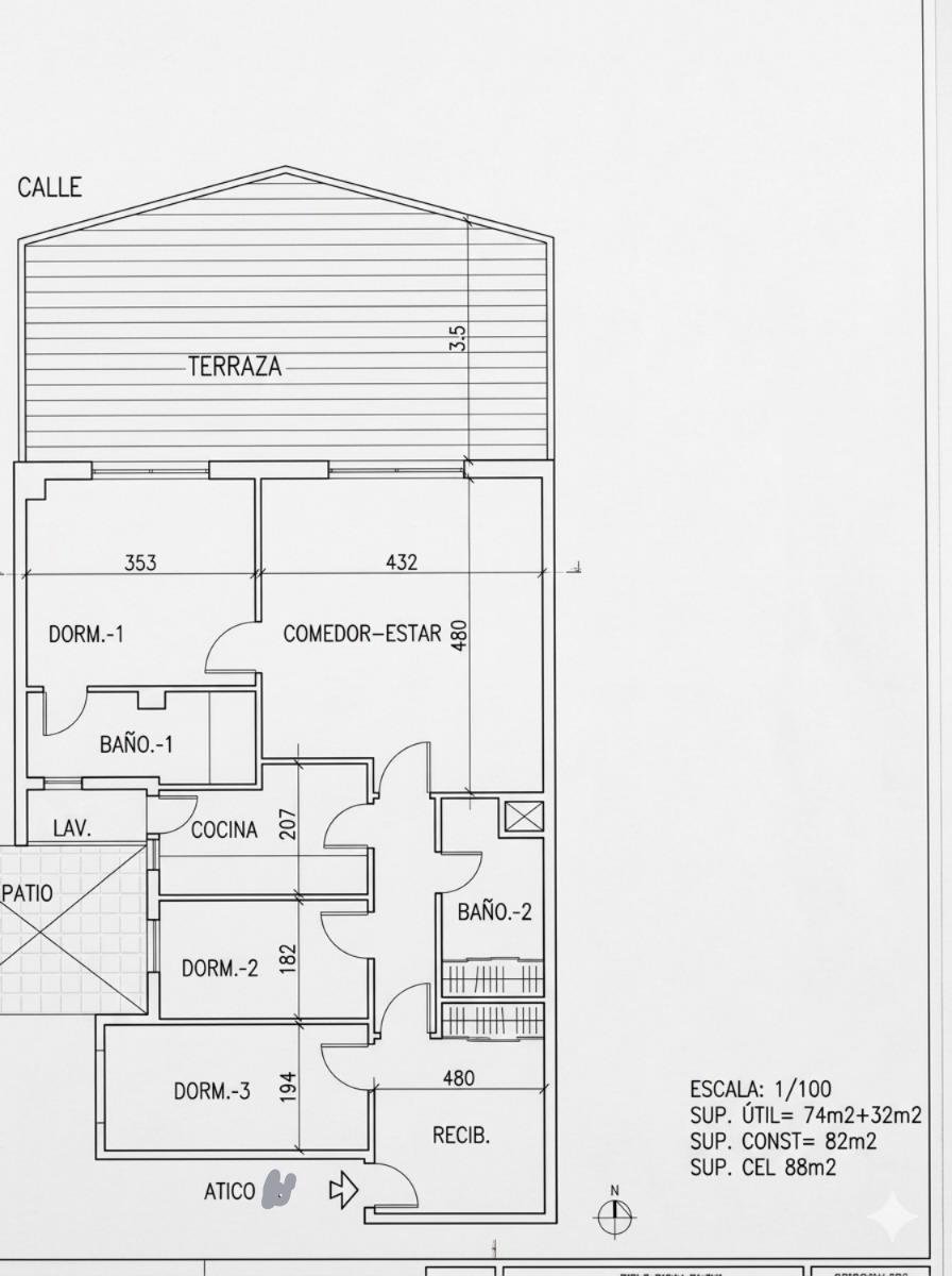
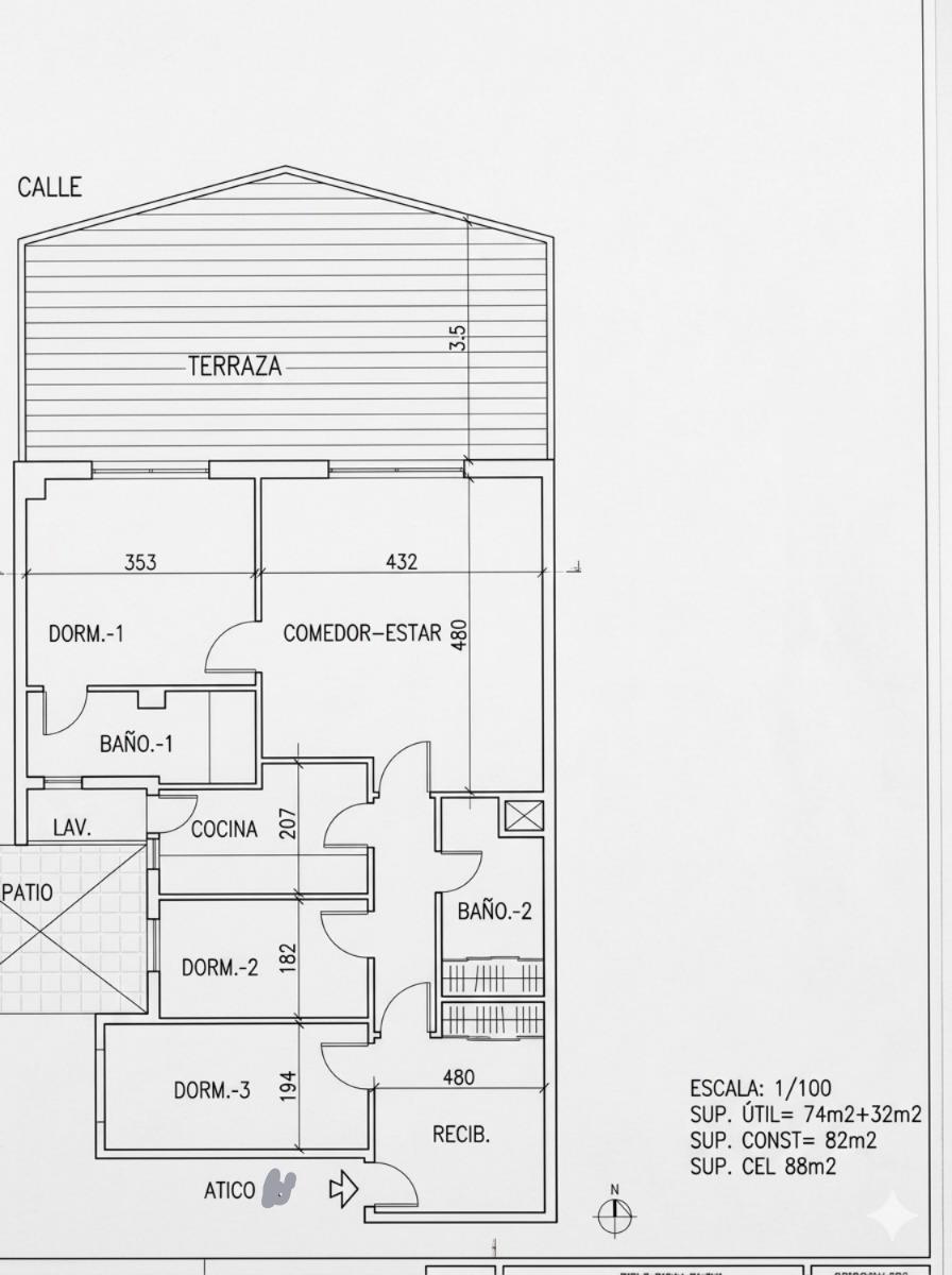
Nº AICAT 8570.Descubra este precioso ático en venta situado en una de las zonas más demandadas de Barcelona. La vivienda cuenta con 74 m² útiles, 85 m² construidos y destaca por su magnífica terraza de 33 m², un espacio amplio y soleado ideal para disfrutar del aire libre durante todo el año.

El piso dispone de 2 dormitorios dobles, uno de ellos con acceso directo a la terraza, aportando una conexión única entre el interior y el exterior. Cuenta además con 2 baños completos, ofreciendo comodidad y funcionalidad para el día a día.

La propiedad se encuentra en buen estado de conservación y está ubicada en una finca con ascensor, lo que añade un plus de comodidad. Existe la posibilidad de adquirir una plaza de garaje opcional por 23.000 €, un valor añadido muy apreciado en la zona. El aparcamiento está ubicado en el mismo edificio, con una plaza amplia adecuada para un coche como y una moto.

Este ático es una oportunidad ideal tanto para quienes buscan una vivienda exclusiva como para inversores que desean una propiedad con gran atractivo en el mercado.

Ubicación y transporte.Excelente conexión con transporte público, con acceso cercano a las líneas de metro:.L3 (verde).L5 (azul)

Sobre la zona – Les Corts.Les Corts es un distrito residencial elegante y tranquilo, caracterizado por su alta calidad de vida, amplias calles y una excelente oferta de servicios. Combina perfectamente zonas comerciales, colegios, áreas verdes y equipamientos deportivos, convirtiéndose en una de las mejores opciones para vivir en Barcelona con comodidad y buena conexión al resto de la ciudad.

Certificado - E171; E36.Gastos de comunidad: 74€/mes.IBI: 600€/año.

Nº AICAT 8570.Discover this beautiful penthouse for sale, located in one of Barcelona’s most sought-after residential areas. The property offers 74 m² of usable space, 85 m² built, and stands out for its impressive 33 m² terrace, a spacious and sunny outdoor area perfect for relaxing, entertaining, or enjoying the Mediterranean lifestyle all year round.

The apartment features 2 double bedrooms, one of which has direct access to the terrace, creating a seamless indoor-outdoor living experience. It also includes 2 full bathrooms, ensuring comfort and practicality.

Additionally, there is an optional parking space available for €23,000, a highly valuable feature in this area. Parking is located in the same building, with a spacious spot suitable for both a car and a motorbike. The flat is in good condition, situated in a well-maintained building with a lift.

.This penthouse represents an excellent opportunity both as a primary residence and as an investment property with strong appeal.

Location & Transport.The property benefits from excellent public transport connections, with nearby metro lines:.L3 (Green Line).L5 (Blue Line)

About the area – Les Corts.Les Corts is an elegant residential district known for its high quality of life, wide streets, and excellent amenities. It offers a perfect balance of local commerce, green spaces, schools, and sports facilities, making it one of the most desirable areas to live in Barcelona, with convenient access to the rest of the city.

Certificates - E171; E36.Community fees: €74/month.Property tax (IBI): €600/year.

View Others

Vila de Gràcia

2  Bedrooms
Barcelona
€395,000
Barcelona
€580,000

Turo Park

5  Bedrooms
Barcelona
€1,850,000

El Poblenou

2  Bedrooms
Barcelona
€400,000

Vila de Gràcia

3  Bedrooms
Barcelona
€950,000

El Gòtic

1  Bedrooms
Barcelona
€360,000

El Gòtic

1  Bedrooms
Barcelona
€390,000

Sant Gervasi – Galvany

3  Bedrooms
Barcelona
€998,000

Sant Gervasi – Galvany

5  Bedrooms
Barcelona
€4,400,000
1 - 9 of 86 properties
Powered by Estatik

Request A Valuation

Our team doesn't just value your home, but finds out more about your expectations and intentions so we can
tailor the selling process to your needs.

Reset password

Enter your email address and we will send you a link to change your password.

Comience con su cuenta

para guardar tus casas favoritas y más

Sign up with email

Comience con su cuenta

para guardar tus casas favoritas y más

By clicking the «SIGN UP» button you agree to the Terms of Use and Privacy Policy
Powered by Estatik